Land adjacent to 164 St. Margarets Road Ward End, BIRMINGHAM, West Midlands, B8 2BQ

  • Conditional Online Auction Sale

John Shepherd Estate Agents are pleased to offer this plot of land in Birmingham

Description

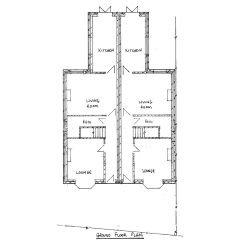
The planning permission was granted (expired in June 2020) for the building of two three storey houses with 3 – 4 bedrooms – of c1,100 sq ft each.

The planning application number is 2017/03421/PA and can be viewed on the Birmingham Council

Tenure : We understand that the Subject Site is will be FREEHOLD

Local Authority Enquiries : All enquiries to – Birmingham City Council

Viewing : Strictly By Appointment Only

The site is available for viewings, we will require c48 hrs notice to view. Also the site is open land, therefore it may be undulant underfoot, we would ask you to be mindful of our Safety On Site paragraph below.

To arrange an inspection or obtain further information in respect of the development land, contact; The Land & New Homes team or call .

Safety on Site : Any prospective purchaser viewing the site should be especially careful and vigilant when making their inspection of the land/ buildings for their own personal safety. The ground may be uneven and may contain debris/ foliage, furthermore the site is located near to existing dwellings so will have vehicular access at all times throughout the day and night.

Interested viewers must take care, and therefore, no children or pets to be allowed onto the premises. Neither the vendors nor their agents (Joint/ Sole or Multi) accept any responsibility or liability for personal injury caused to individuals or any third party whilst on the premises.

Opening Bid and Reserve Price

This Property is subject to an undisclosed Reserve Price which in general will not be 10% more than the Opening Bid. The Reserve Price and Opening Bid can be subject to change. The Online Auction terms and conditions apply.

Comments

This property is offered for sale via Online Auction which is a flexible and buyer friendly method of purchase. The purchaser will not be exchanging contracts on the fall of the virtual hammer, but will be given 56 working days in which to exchange and complete the transaction from the date the Draft Contract is issued by the sellers solicitor.

By giving a buyer time to exchange contracts on the property, normal residential finance can be arranged. The Buyer’s Premium secures the transaction and takes the property off the market. Fees paid to the Auctioneer reserve the property to the buyer during the Reservation Period and are paid in addition to the purchase price and are considered within calculations for Stamp Duty Land Tax. Further clarification on this must be sought from your legal representative.

The buyer will be required to give the Auctioneer authority to sign the Reservation Form on their behalf and to confirm acceptance of the Terms and Conditions prior to solicitors being instructed. Copies of the Reservation Form and all Terms and Conditions can be found in the Information Pack which can be downloaded from our website or requested from our Auctioneer.

Upon close of a successful auction, or if the vendor accepts an offer during the auction, the buyer will be required to make payment of a non-refundable Buyer's Premium of £5,982 including VAT, plus a buyer's administration charge of £372 including VAT, a total of £6,354. This secures the transaction and takes the property off the market. Any additional fees and charges over and above this will be confirmed within the terms and conditions available on the website.

The Buyer's Premium and buyer's administration charge are in addition to the final negotiated selling price.

All buyers will be required to verify their identity and provide proof of how the purchase will be funded.

Buyer's Administration Charge

If the Buyer Information Pack has been produced and provided by GOTO Group any successful purchaser will be required to pay £372 (including VAT) towards the cost of the preparation of the pack. These can then be used by your solicitor to progress the sale.

Buyer Fees

There are no other fees or charges payable to the Auctioneer however, there are other costs to consider such as:

  • You will need a Solicitor to act for you during the conveyancing and your Solicitor will advise you in relation to the associated costs. If you do not have a Solicitor, we can recommend the services of one of our Panel Solicitors who are all selected for their expertise in Auction Transactions. Please call the number below for more information.
  • Stamp Duty Land Tax (SDLT) is applicable if you buy a property or land over a certain price in England, Wales or Northern Ireland. Please click here for more information.

Energy Performance Certificate (EPCs)

An EPC is broadly like the labels provided with domestic appliances such as refrigerators and washing machines. Its purpose is to record how energy efficient a property is as a building. The certificate will provide a rating of the energy efficiency and carbon emissions of a building from A to G, where A is very efficient, and G is inefficient. The data required to allow the calculation of an EPC includes the age and construction of the building, its insulation and heating method. EPCs are produced using standard methods with standard assumptions about energy usage so that the energy efficiency of one building can easily be compared with another building of the same type. The Energy Performance of Buildings Directive (EPBD) requires that all buildings have an EPC when they are marketed for sale or for let, or when houses are newly built. EPCs are valid for 10 years, or until a newer EPC is prepared. During this period the EPC may be made available to buyers or new tenants.

Loading the bidding panel...

Office Contact

01844 355024

Agreement Documents

Additional Documents

Online Auction Buying Guide

Share